Beteiligung bei Bauleitplanverfahren
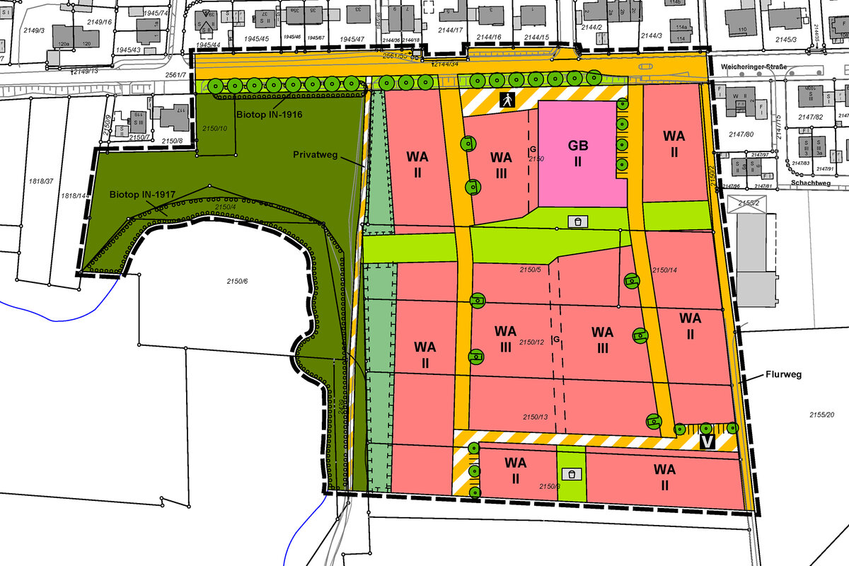
Hier können Sie die nach §§ 3 und 4 BauGB in der Träger- und Öffentlichkeitsbeteiligung befindlichen Bauleitplanverfahren (vorbereitende und verbindliche Bauleitplanung) einsehen. Sie können hierzu Stellungnahmen im Stadtplanungsamt abgeben.
Sie finden nähere Informationen zum jeweiligen Planungsstand und zum Auslegungszeitraum. Es wird darauf hingewiesen, dass es sich um Planstände im Verfahren handelt, aus denen noch kein Baurecht abgeleitet werden kann.
Wenn keine Pläne aufgeführt sind, gibt es momentan keine öffentlichen Auslegungen.
